Добро пожаловать на http://vipplan.ru

Випплан Мытищи - это тысячи проектов домов в нашем каталоге!

Вы всегда сможете найти для себя проект дома вашей мечты! Даже если этого не случилось, мы готовы в любую минуту предложить проект индивидуального дома.

Забыли пароль?
Вы еще не регистрировались?

Перейдите по ссылке ниже на страницу регистрации.

Регистрация...

Внимание!!!

В проектную документацию могут быть внесены изменения любой сложности, в соответствии в Вашими пожеланиями!

Полезные статьи

Утепление стен дома изнутри

Утепление стен дома изнутри – это не правильный метод теплоизоляции помещения и используется в самом крайнем случае, когда других вариантов уже не остается. Как правило, утепление стен изнутри выполняется по незнанию или вынужденно, поскольку, теплоизоляция внутренних помещений дома другим способом невозможна. Вопросы теплоизоляции необходимо решать на стадии проектирования дома или коттеджа, а не тогда когда дом уже построен и приходится исправлять совершенные ошибки по факту....

Инженерный раздел архитектурно-строительного проекта

Понятие «комфортный, теплый и уютный дом» включает в себя грамотно рассчитанные и проведенные инженерные сети. Наша компания, имея большой опыт, возьмет на себя весь комплекс мероприятий по проектированию вашего дома, связанные с планировкой, выбором материалов и устройством инженерных систем (инженерный раздел проекта дома: электрика, отопление, водоснабжение и канализация)...

Проекты домов и коттеджей > Каталог проектов домов > Популярный проект коттеджа с мансардой Vg1316

Популярный проект коттеджа с мансардой Vg1316

Популярный проект коттеджа с мансардой
Зарегистрируйтесь

Проект № Vg1316


Техническое описание
Общая площадь: 314.43 м2
Жилая площадь: 130.69 м2
Высота здания: 10.15 м
Размеры дома: 15.14м×12.94м
Кол-во комнат: 6
Цокольный этаж: есть
Гараж: нет
Мансарда: есть

Kонструкция
Фундамент: Монолитный ж/б
Перекрытия: Сборные плиты
Материал стен: Газобетон

Архитектурный раздел
Конструктивный раздел
Инженерный раздел
АР+КР - 84 000 (Со скидкой 20%)
АР+КР+ИР - 193 900 (Со скидкой 50%)
Проект индивидуального одноэтажного жилого дома с подвалом и мансардой с размерами 15.14 x 12.94 м. Наружная отделка здания – декоративная фасадная штукатурка, деревянные панели. Отделка цоколя – клинкерная плитка. Фундамент – монолитный ж/б (ленточный под несущими стенами). Наружные стены запроектированы из газобетонных блоков и утеплителя с отделкой декоративной фасадной штукатуркой и деревянными панелями. Внутренние стены – из газобетонных блоков. Перегородки – из газобетонных блоков, забутовочного кирпича и гипсокартона на металлическом каркасе. Пол подвала и частично пол 1-го этажа – пол по грунту. Перекрытия межэтажные – сборные плиты перекрытия и деревянные балки с использованием теплошумоизоляционных материалов. Перекрытие чердачное – деревянные балки с использованием теплошумоизоляционных материалов. Крыша - многоскатная. Материал кровли – металлочерепица. Окна - металлопластиковые, выполненные по индивидуальному заказу.
Генплан застройки участка / Паспорт проекта 7000 руб / 10000 руб
Инженерный раздел (полный) 109900 руб (157000 руб)
Смета на строительство 78500 руб
Теплотехнический расчет материалов стен Бесплатно
Стоимость проекта со незначительнми изменениями 97150 руб
Стоимость проекта со средними изменениями* 120700 руб
Стоимость проекта со значительными изменениями** 127000 руб

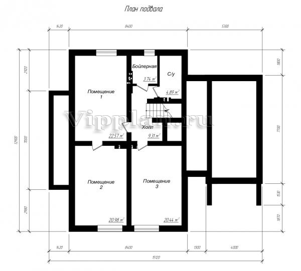
План цокольного этажа


Холл — 9,31 м2
Бойлерная — 3,74 м2
С/у — 4,89 м2
Помещение 1 — 22,57 м2
Помещение 2 — 20,98 м2
Помещение 3 — 20,44 м2

План первого этажа


Тамбур — 4,20 м2
Холл — 3,41 м2
Тамбур — 1,95 м2
Холл — 9,34 м2
Постирочная — 3,74 м2
С/у — 4,94 Кухня — 23,01 м2
Гостиная — 42,99 м2
Гараж — 22,08 м2

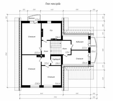
План мансардного этажа


Холл — 7,97 м2
Спальня — 14,44 м2
Спальня — 21,48 м2
Спальня — 22,57 м2
С/у — 11,66 м2
Гардероб — 3,56 м2
Кабинет — 13,77 м2
Спальня — 15,44 м2
Балкон — 5,54 м2
Популярный проект коттеджа с мансардой Популярный проект коттеджа с мансардой Популярный проект коттеджа с мансардой Популярный проект коттеджа с мансардой
Внесение изменений и привязка к участку строительства

В любой из проектов от компании VIPplan - Мытищи по вашему желанию могут быть внесены изменения в материалы стен, материалы наружной отделки дома, а также будет произведена адаптация проекта под конкретный регион строительства (с учетом грунтов региона, геологических особенностей вашего участка и местных климатических условий) - БЕСПЛАТНО !!! (кроме проектов со скидкой и проектов наших партнеров).

Любой из проектов, размещенных на сайте myitischi.vipplan.ru мы можем выполнить из требуемых вам строительных материалов: ячеистый бетон (газобетон, пеноблок), керамоблок, кирпич, шлакоблок, бетонный блок, дерево (брус, клееный брус), каркасная технология (деревянный каркас, металлокаркас (ЛСТК)).

Фасад дома и его наружную отделку так же возможно выполнить с применением различных облицовочных материалов: структурной штукатурки, (с утеплителем и без), сайдингом (пластиковый или металлосайдинг), фиброплитами, кирпича.

 
6 Избранные
проекты

Доставка проектов по России: Москва (Московская область), Санкт-Петербург (Ленинградская область), Краснодар, Ростов-на-Дону, Ставрополь, Сочи, Волгоград, Новосибирск, Белгород, Брянск, Воронеж, Саратов, Хабаровск, Астрахань, Нальчик, Владикавказ, Екатеринбург, Тюмень, Самара, Нижний Новгород, Казань, Пермь, Уфа, Челябинск, Красноярск, Ханты-Мансийск, Иркутск, Курган, Оренбург, Омск, Томск, Барнаул, Новокузнецк, Кемерово, Абакан, Чита, Якутск, Южно-Сахалинск, Петропавловск-Камчатский и страны ближнего зарубежья: Белоруссия, Украина, Казахстан